Via del Fante 55 5 vani 106mq
Dati annuncio : Vendita Pentavani, Cecina
CECINA (LI)
APPARTAMENTO DI NUOVA COSTRUZIONE CON GIARDINO E GARAGE.
In una delle zone residenziali più ricercate di Cecina, proponiamo in vendita un appartamento di nuova costruzione posto al piano primo di una bifamiliare, con consegna prevista per Marzo 2026.
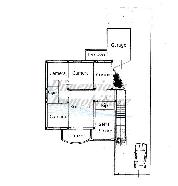
L’immobile, di circa 106 mq, si raggiunge da ingresso indipendente attraverso il giardino privato.
Una scala esterna conduce all’abitazione, dove si apre un’accogliente zona giorno con accesso diretto alla terrazza abitabile, perfetta per intrattenere i tuoi ospiti all’aperto o momenti di relax.
Ad arricchire la zona giorno una serra solare collegata al soggiorno, ideale per ampliare lo spazio con luce naturale tutto l’anno.
La cucina è separata e abitabile, anch’essa con terrazzo dedicato.
La zona notte si compone di tre camere da letto, bagno finestrato e ripostiglio, già predisposto per un eventuale secondo bagno.
A completare la proprietà: un giardino esclusivo di circa 110 mq, garage di circa 15 mq e due posti auto riservati.
L’abitazione sarà completamente autonoma dal punto di vista energetico, dotata di impianto fotovoltaico da 2kW e realizzata in classe energetica A+++, per garantire comfort, risparmio e sostenibilità.
Possibilità di personalizzazione: il futuro acquirente potrà scegliere le finiture interne e valutare modifiche alla distribuzione degli spazi.
Un’opportunità perfetta per chi cerca una casa moderna, efficiente e indipendente, in un contesto residenziale tranquillo e con tutti i principali servizi facilmente raggiungibili anche a piedi!
Consegna prevista: MARZO 2026
Per info e visite:
Per garantire la privacy dei proprietari, l´indirizzo può non rispecchiare esattamente l´ubicazione dell´immobile ed è utile al solo fine di fornire un riferimento generico per la sua localizzazione ed un ausilio alla consultazione. L’ Agenzia declina ogni responsabilità per eventuali incongruenze contenute nell´annuncio rispetto alla reale situazione della proprietà. Vi invitiamo pertanto a verificare le caratteristiche dello specifico immobile contattando direttamente l’Agenzia Dimensione Immobiliare.
- PropostaOffro
- ContrattoVendita
- Prezzo410.000,00 €
- Anno2025
- Vani5
- Numero piani1
- Mq totali106
- Camere3
- Bagni1
- Posti auto2
- Classe energeticaA+
- Classe energetica (ipe)0.0
- StatoNuovo
- AscensoreNo
- TerrazzoSi
- GiardinoNd
- CantinaNo
- RiscaldamentoAutonomo
- ProvinciaLivorno
- ComuneCecina
- IndirizzoVia del fante 55
- CodiceEA-08949A





