MALISETI quadrilocale 88mq
Dati annuncio : Vendita Quadrivani, Prato
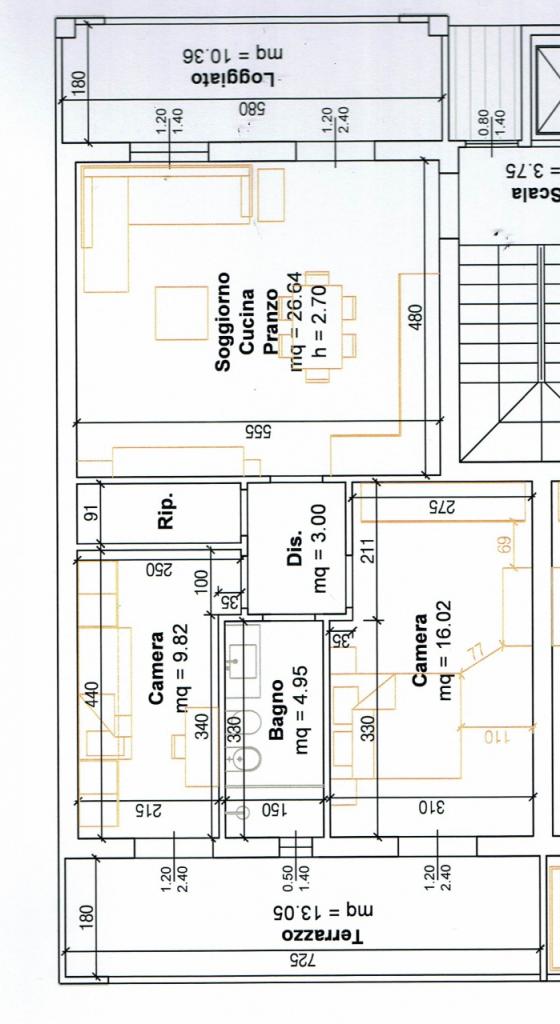
Prato Nord nuova costruzione 7 appartamenti in classe A , taglio ´´giovane´´ con zona living open space ampio soggiorno angolo cottura con terrazzo a loggia; camera matrimoniale e camera singola affacciate su terrazzo a loggia; ripostiglio, bagno finestrato. A piano terra i due appartamenti hanno entrambi il giardino privato frontale e tergale con loggiati coperti. Impianto di riscaldamento modernissimo in linea con le norme green, tutto elettrico con pannelli radianti al pavimento. Avvolgibili con funzionamento elettrico. Verrà eseguita la predisposizione per il climatizzatore secondo le linee di un design moderno evitando gli split in evidenza. Ogni appartamento ha in dotazione il posto auto coperto. Vista ´´wow´´ sul Monteferrato, zona interna tranquillissima vicina al verde per passeggiate rigerneranti e aria buona. Tutti i servizi e la grande viabilità sono comunque vicini rendendo la nuova costruzione ancora più allettante. Finiture eccellenti, capitolato medio alto, possibilità personalizzare. Consegna prevista per SETTEMBRE 2025. In sintesi:
piano terra mq. ca. 77 con 5o/60 mq di giardino, logge per 25 mq. ca; totale mq. convenzionali 93/94 compreso posto auto 283.000,00
piano primo e secondo: mq. ca. 77 con logge per 25,45 mq. totale mq. superficie convenzionale 88/89 compreso posto auto 265.000,00
Classe Energetica: A3 - IPE: 0.00kWh/mq anno
- PropostaOffro
- ContrattoVendita
- Prezzo265.000,00 €
- Vani4
- Numero piani3
- Piano2
- Mq totali88
- Camere2
- Bagni1
- Classe energeticaA3
- StatoNuovo
- AscensoreSi
- Tipo costruzioneResidenziale
- CucinaAngolo cottura
- TerrazzoSi
- GiardinoPrivato
- RiscaldamentoAutonomo
- ArrediNon arredato
- BoxPosto auto
- DisponibilitLibero al rogito
- ProvinciaPrato
- ComunePrato
- Data14-11-2025 06:29:38
- CodiceEA-673075











