Casa Indipendente quadrilocale 127mq

Dati annuncio : Vendita Casa Indipendente, Ragusa
Pronto Casa Group propone in vendita una splendida villetta indipendente situata nella tranquilla e ricercata zona Cerasella, a Marina di Ragusa.
L’immobile, inserito in un contesto residenziale abitato tutto l’anno, rappresenta la soluzione ideale per chi desidera vivere in un’abitazione immersa nel verde, a pochi minuti dal mare e con ampi spazi interni ed esterni.
CARATTERISTICHE PRINCIPALI
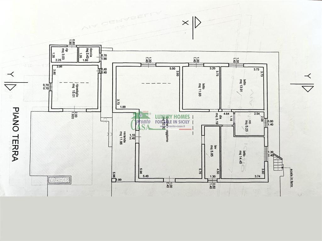
La villetta si sviluppa interamente al piano terra e dispone di una superficie di circa 127 mq, così distribuiti:
– Ampia e luminosa zona living, ideale per accogliere famiglia e ospiti;
– Cucina abitabile separata, comoda e funzionale per l’uso quotidiano;
– Tre camere da letto matrimoniali;
– Servizio principale, completo;
– Lavanderia dedicata, pratica e ben organizzata.
Al piano superiore, accessibile da scala esterna, è presente un vano sottotetto perfetto come locale di sgombero o spazio di deposito aggiuntivo.
SPAZI ESTERNI
La proprietà sorge su un lotto di circa 1300 mq, completamente circondato da aree verdi curate e impreziosite da alberi di carrubo e ficus benjamin.
Gli spazi aperti rappresentano uno dei veri punti di forza dell’immobile, perfetti per vivere all’aria aperta, organizzare pranzi in famiglia o godere della massima privacy.
Di pertinenza anche un locale magazzino di circa 20 mq, utile come ripostiglio, laboratorio o garage per moto e piccoli mezzi.
DOTAZIONI E CONDIZIONI
– Struttura indipendente su quattro lati;
– Ottimo potenziale di personalizzazione;
– Immobile già abitabile;
– Contesto residenziale stabile e ben frequentato.
POSIZIONE
La villetta si trova in un villaggetto residenziale alle porte di Marina di Ragusa, zona tranquilla e abitata tutto l’anno, a soli 2 km dalle spiagge e dai principali servizi della località balneare.
Per maggiori informazioni sull’immobile o per prenotare una visita, contatta la filiale Pronto Casa Group – Agenzia 7 Marina di Ragusa al numero 0932 239865.
Visita anche il nostro sito www.pronto-casa.it
per scoprire tutti gli immobili disponibili in zona.
Se vuoi, posso anche creare una versione più breve, una più elegante oppure una ottimizzata per portali come Idealista, Casa.it o Immobiliare.it.
- PropostaOffro
- ContrattoVendita
- Prezzo250.000,00 €
- Vani4
- Mq totali127
- Camere3
- Bagni1
- Classe energeticaG
- CucinaCucina abitabile
- GiardinoPrivato
- Tipologia immobileCasa indipendente
- ProvinciaRagusa
- ComuneRagusa
- Data03-12-2025 05:36:59
- CodiceEA-D2C983











