Appartamento trilocale 80mq

Dati annuncio : Vendita Appartamento, Lierna
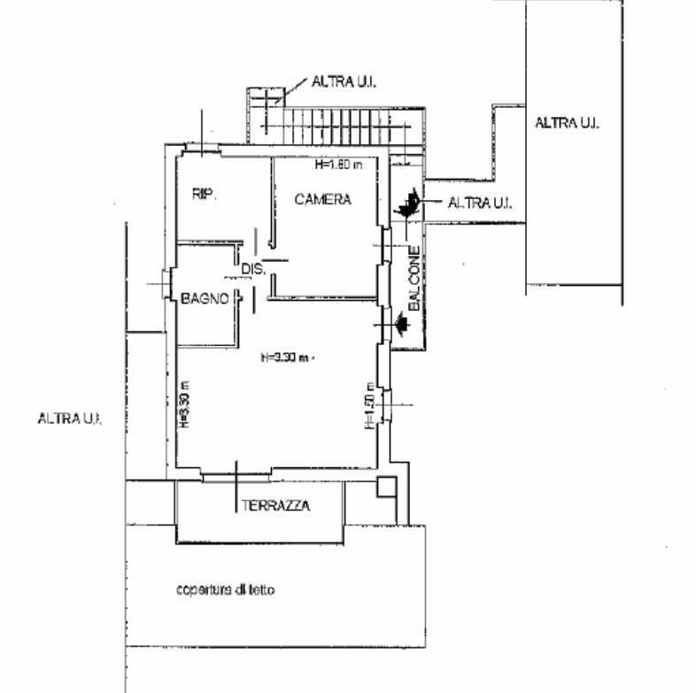
Lierna, in posizione dominante e con un’incomparabile vista sul lago, proponiamo in vendita uno splendido appartamento mansardato di tre locali, situato all’interno di un prestigioso residence di recente costruzione con PISCINA.
L’abitazione si trova al primo e ultimo piano, garantendo privacy e tranquillità, ed è caratterizzata da un ingresso indipendente. Gli spazi interni sono progettati per offrire il massimo comfort. Ingresso sull’ampia e luminosa zona giorno con doppia esposizione, cucina a vista e accesso alla splendida terrazza a pozzo, dove la vista aperta sul lago regala scenari unici in ogni stagione. Zona notte con disimpegno, due camere da letto (di cui una con accesso al balcone), bagno finestrato con doccia.
L’appartamento si distingue per le sue finiture di pregio e per lo stato di conservazione pari al nuovo. Impianti tecnologici all’avanguardia, con riscaldamento a pavimento e aria condizionata in tutti gli ambienti, garantiscono il massimo benessere abitativo.
Completa la proprietà un box doppio in larghezza e un posto auto scoperto.
Ready to live: la vendita potrà includere, con un piccolo extra, tutti gli arredi, rendendolo una soluzione perfetta per chi cerca una casa di charme, senza compromessi.
Per non perderti anteprime e contenuti utili seguici anche sulla nostra pagina Facebook ´´Lisolago Servizi Immobiliari´´ e su Instagram digitando lisolago_immobiliare, ti aspettiamo!
Per maggiori informazioni visita il nostro sito internet www.immobiliarelisolago.it oppure contattaci per fissare un appuntamento senza impegno. Puoi chiamarci allo 0341.702013 o puoi venire a trovarci nel nostro ufficio di Mandello, via F.lli Pini Garibaldini n. 25, tutti i giorni dal lunedì al venerdì, dalle ore 09.00 alle ore 19.00, il sabato dalle ore 09.00 alle ore 12.00.
- PropostaOffro
- ContrattoVendita
- Prezzo280.000,00 €
- Vani3
- Mq totali80
- Camere2
- Bagni1
- Classe energeticaB
- Classe energetica (ipe)3208
- Classe energetica (unità di misura)Kwh/m²a
- Tipo costruzioneDi prestigio
- CucinaCucina a vista
- RiscaldamentoA pavimento
- BoxBox doppio
- Tipologia immobileAppartamento
- ProvinciaLecco
- ComuneLierna
- Data01-10-2025 06:06:55
- CodiceEA-89C6A7