Appartamento trilocale 101mq

Dati annuncio : Vendita Appartamento, Vaprio d'Adda
In posizione centrale con un piacevole affaccio sul cuore del paese, proponiamo in vendita un appartamento di 3 locali completamente ristrutturato a nuovo, ideale per chi cerca ambienti moderni e funzionali
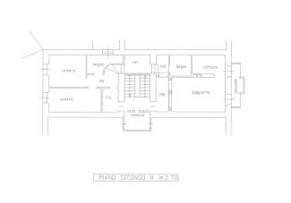
L´ingresso si apre su un luminoso soggiorno con zona pranzo, collegato alla cucina a vista, ben integrata ma al tempo stesso riservata.
La zona notte è composta da una camera matrimoniale, una cameretta e uno studio/spazio giochi versatile e facilmente adattabile alle proprie esigenze.
Completano la soluzione un bagno finestrato, una comoda lavanderia e un balcone con vista sul centro storico.
Grazie alla recente ristrutturazione, l´appartamento si presenta con impianti moderni, finiture curate e spazi ben distribuiti, pronto per essere abitato senza alcun intervento.
Un´ottima opportunità per chi desidera vivere in una casa pratica, elegante e in posizione servita
*La geo localizzazione ed i dati indicati nell´annuncio vanno considerati quali indicativi e non costituiscono elemento contrattuale.
- PropostaOffro
- ContrattoVendita
- Prezzo139.000,00 €
- Vani3
- Mq totali101
- Camere2
- Bagni2
- Balconi1
- Classe energeticaG
- Classe energetica (ipe)35649
- Classe energetica (unità di misura)Kwh/m²a
- StatoRistrutturato
- CucinaCucina a vista
- Tipologia immobileAppartamento
- ProvinciaMilano
- ComuneVaprio d'adda
- Data26-11-2025 06:33:05
- CodiceEA-9E9A1B











